SDProget Industrial Software rilascerà a breve la release 2020 della sua nota soluzione per la progettazione elettrica SPAC Automazione. Vediamone in anteprima le principali caratteristiche.
Indice degli argomenti
Modalità di disegno dinamico
Per incrementare la rapidità di stesura degli schemi e garantire tempi di consegna sempre più ristretti, SPAC 2020 introduce una nuova modalità di disegno dinamico che propone automaticamente i collegamenti quando i componenti vengono posizionati sullo schema. Questi collegamenti sono visualizzati in modalità provvisoria e possono essere rapidamente modificabili o confermati dall’operatore.
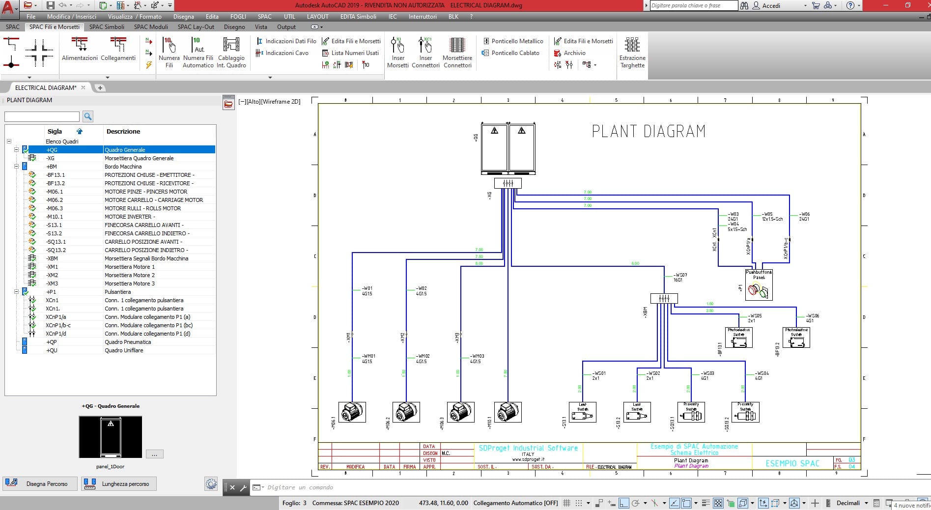
Inoltre, la nuova funzionalità plant diagram assiste il progettista nella stesura di uno “schema a blocchi”, fissando le componenti principali che diventano il punto di partenza per la stesura dello schema funzionale, attingendo da esso le sigle e i materiali predefiniti.
Il generatore QR-Code
Ma non solo: con la release 2020 debutta l’esclusiva funzione Generatore di QR code, che consente la generazione per ogni componente dell’impianto di un QR-code da inserire direttamente sullo schema (dwg o pdf) e/o su targhette adesive a bordo macchina. Ciascun QR Code dà accesso ad una grande quantità di informazioni leggibili dall’applicazione gratuita QRSpac (disponibile per iOS e Android). In questo modo sarà possibile consultare in qualunque momento e luogo tutte le informazioni pertinenti alla singola parte, così da agevolare le attività di manutenzione.
Inoltre, la release 2020 introduce una utility dedicata a convertire file PDF prodotti anche da altri cad elettrici in file DWG. Ciò consente di ottenere schemi multifilari grafici con cui sarà possibile ottenere modifiche rapide, annotazioni e stampe personalizzate.








